G010

Order Number: XX-A5ADE-BF

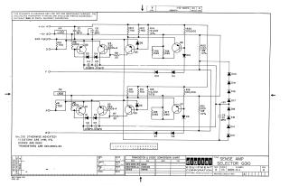
This document is a proprietary electronic schematic for a "Sense Amp Selector GOIO," designed by Digital Equipment Corporation and copyrighted in 1966. It is furnished exclusively for test and maintenance purposes.

The schematic illustrates a circuit with two largely symmetrical amplifier/selector channels. Each channel incorporates multiple transistors (predominantly DEC 2894-3A, with Q3 and Q4 specified as DEC 3009-A, equivalent to 2N3009) and D662 diodes (equivalent to IN645). The circuit operates using +10V, -5V, and ground (GND CM,VO) power rails, with specific input lines designated as D O, F O, N O, and R O. Output signals appear to be routed through a series of diodes (D7-D20) which include a -3V reference point.

General component specifications are provided:

  • Resistors: Primarily 1/4W, 5% tolerance, with specific exceptions such as R21 and R22, which are 2W, 10%.
  • Capacitors: Mostly .01 MFD.
XX-A5ADE-BF
1966
1 pages
Quality

Original
78.7kB

Site structure and layout ©2025 Majenko Technologies