Power Control 844

Order Number: Z844

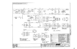
This document is an electrical schematic for a power control unit manufactured by Digital Equipment Corporation in 1967. It details the circuitry for power distribution, including switched and unswitched AC lines, frame grounding, and various relay and diode configurations. The document includes a "Coil Details" section illustrating specific wiring for Rowan and General Electric/Arrow-Hart relay coils, along with a comprehensive parts list specifying components such as capacitors, resistors, relays, and circuit breakers used within the assembly.

Z844
2000
1 pages
Quality

Original
0.1MB

Site structure and layout ©2025 Majenko Technologies