Punch Control M710

Order Number: M710

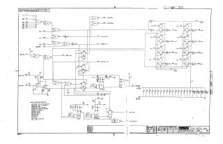
This document is a technical schematic for the Digital Equipment Corporation "Punch Control M710" module. The schematic details the logic circuitry, including various integrated circuits (such as DEC7474, DEC9601, and DEC7400), capacitors, resistors, and diodes required for punch control operations. It includes specific signal paths for I/O functions, clock pulses (A and B), synchronization, and motor timing delays (ranging from 1/3 second to 5 seconds). The document also provides specifications for components used in the assembly, notes regarding power (PIN 14 = +5V, PIN 7 = GND), and a reference conversion chart for transistors and diodes.

M710
2000
1 pages
Quality

Original
92.7kB

Site structure and layout ©2025 Majenko Technologies