H763 Regulator Board

Order Number: GT-O7350-22

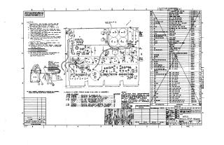
The provided document is the technical documentation, including assembly instructions, parts lists, and schematic diagrams, for the H763 Regulator Board.

Summary:

  • Purpose: The board functions as a voltage regulator, featuring components for battery charging, ±15V inversion, and power monitoring.
  • Contents:

    • Notes: Technical requirements for component substitution, thermal insulation, and assembly procedures (e.g., torque values for screws and mounting instructions).
    • Parts List: A detailed bill of materials specifying the electrical and mechanical components required for the assembly.
    • Wire Table: A guide detailing specific wiring connections (From/To) and required wire lengths.
    • Schematics: Detailed circuit diagrams (sheets 1–3) showing the board's electrical layout, including charging circuits, battery-empty detection, and power-ok logic.
  • Manufacturing Specifications: The documentation includes standard assembly practices, such as the use of thermal compound and specific torque settings for hardware, and provides internal references for module eco history and etched circuit board specifications.

GT-O7350-22
2000
3 pages
Quality

Original
0.4MB

Site structure and layout ©2025 Majenko Technologies