G7001

Order Number: XX-21C8B-E4

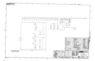
This document is an engineering drawing for a Digital Equipment Corporation I/O BUS TERMINATOR #2, identified by drawing number G7001-0-1, Revision C, and dated December 1972.

The drawing provides:

  1. An electrical schematic detailing the interconnections of various components including resistors (predominantly 100 Ohm and 1.5K Ohm), diodes (D662 and D664 types), and capacitors (.01uF and .39uF), operating with specified voltage rails at GND, -0.7V, -2.8V, and -15V.
  2. A parts list specifying quantities, reference designators, descriptions, and part numbers for all components required, including resistors, diodes, capacitors, mechanical parts (handle, eyelets, tab), and the etched circuit board, along with assembly and drilling layouts.
  3. General specifications indicating that unless otherwise stated, all resistors are 1/4W 5% and all capacitors are 100V 20%.
  4. A semiconductor conversion chart that provides standard industry part numbers for the specified diodes (D662 = IN645, D664 = IN3606).

A legal disclaimer at the top indicates the drawing and specifications are proprietary to Digital Equipment Corporation and require written permission for reproduction or use.

XX-21C8B-E4
2000
1 pages
Quality

Original
84.2kB

Site structure and layout ©2025 Majenko Technologies