Timing Generator

Order Number: B646

Document Summary

This document provides the technical design specifications and schematics for a "Timing Generator" circuit board (Etch Board Revision F) produced by Digital Equipment Corporation.

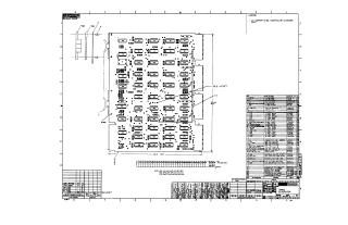
  • Page 1 contains the component layout diagram for the printed circuit board. It includes a comprehensive parts list detailing the resistors, integrated circuits (mostly 7400-series TTL chips), capacitors, and transistors required for assembly. It also specifies a customer-configurable jumper (W1).
  • Page 2 contains the logic schematic for the board, detailing the interconnections between the various integrated circuits. It illustrates how the board processes logic signals, including control lines, clock inputs (EAE CLOCK), and bus strobes, to generate the necessary timing pulses for the system.
B646
2000
2 pages
Quality

Original
0.3MB

Site structure and layout ©2025 Majenko Technologies