Write Buffer M763

Order Number: M763

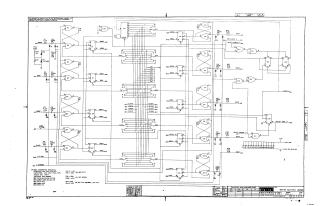
This document is a technical schematic for the Digital Equipment Corporation "Write Buffer" module, identified as model M763. The circuit diagram details the logic design used for data buffering, utilizing various integrated circuits (including flip-flops, NAND gates, and OR gates) to manage signal inputs and outputs. It includes a central bus structure, connections for various control signals (such as Clear, Clock, and Strobe), and power distribution specifications. The document also provides a list of component values and types, along with pin-out configurations for the integrated circuits used in the design.

M763
2000
1 pages
Quality

Original
0.1MB

Site structure and layout ©2025 Majenko Technologies