Circuit Schematic H742

Order Number: H742

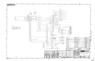
Summary This document is a technical circuit schematic for the H742 power supply unit, manufactured by Digital Equipment Corporation. It details the electrical wiring connections between the unit's main components, including a transformer, cooling fans, a Balun assembly, and various connectors (J1 through J4, TB1, and TB2).

Key features of the document include:

  • Operating Voltage Configuration: Instructions for setting the unit to 115V (using jumpers 1-2 and 3-4) or 230V (using jumpers 2-3).
  • Power Distribution: Illustrates the input/output paths for AC and DC power, including specific voltage rails (8V, 15V) and control signals (AC LO, DC LO, CLK).
  • Parts List: A comprehensive table identifying the components used, such as the "Super Boxer" fans, Jones strips, a light pilot, capacitors, and the transformer.
  • Component Interconnectivity: The diagram tracks the paths from the AC source through the transformer and balancing components to the power control interface.
H742
2000
1 pages
Quality

Original
0.1MB

Site structure and layout ©2025 Majenko Technologies