8V 40 Amp Power Supply

Order Number: H723

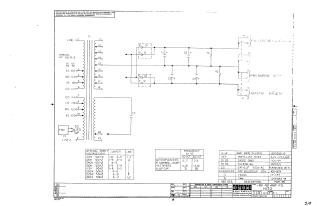
This document is a technical schematic for an 8V 40 Amp power supply unit manufactured by the Digital Equipment Corporation. It provides the wiring layout for the transformer, rectifier, and capacitor network, as well as the jumper configurations required for various input voltages (100V–240V) and frequencies (50Hz/60Hz). It also includes a parts list specifying the transformer, diodes, capacitors, and cooling fan used in the assembly.

H723
2000
1 pages
Quality

Original
78.8kB

Site structure and layout ©2025 Majenko Technologies